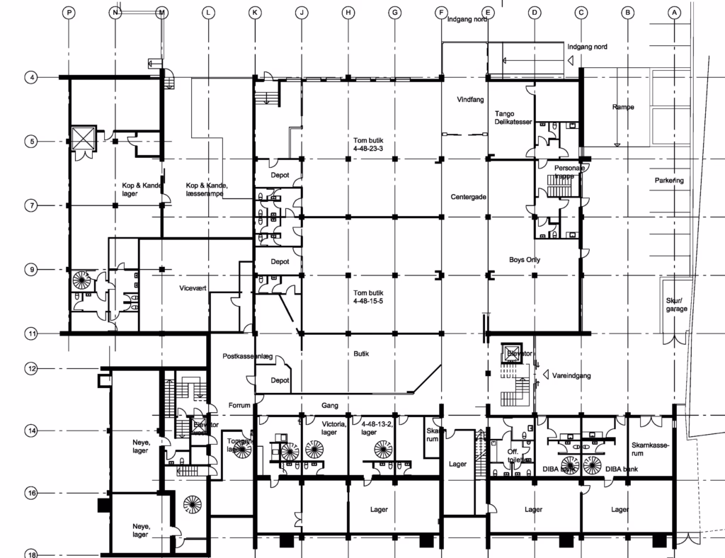
Renovering, ombygning og ændring af anvendelse for 2000m² erhvervsbyggeri i centrum af Holbæk udført i Hovedentreprise. Projekteringsledelse af myndighedsprojektet og koordinering af kundens ønsker til indretning med brand, statik, tilgængelighed med mere.
Relaterede projekter
København K
Nyindretning og ombygning af lejlighed i København K, med etablering af ny tagterrasse.
Klinik på Østbanegade
Indretningen af klinik for kirurigi i Københavns indre by. Ved hjælp af den eksisterende ejendoms rige bygningsmæssige kvaliteter…
Ask Landsby
I samarbejde med CSOffice har HJ Entreprenør & Byggepartner udarbejdet myndighedsprojekt og udbudsprojekt på 16 rækkehusboliger i Ask…
Ny Munkegade i Aarhus
Renovering og ombygning af to etageejendomme og deres baghuse i centrum af Aarhus, udført i hovedentreprise. Projektledelse af…
Landejendom ved Struer
Ombygning af eksiterende ejendom med udnyttelse af eksiterende loftrum. I forbindelse med byggeriet udnyttes overetagen til beboelse, hvorved…
Kontorindretning i Aarhus
På Hasselager Centervej i Viby er indretningen af to kontorfløje totalrenoveret store glaspartier for gennemlysning af lokalerne varieret…
















